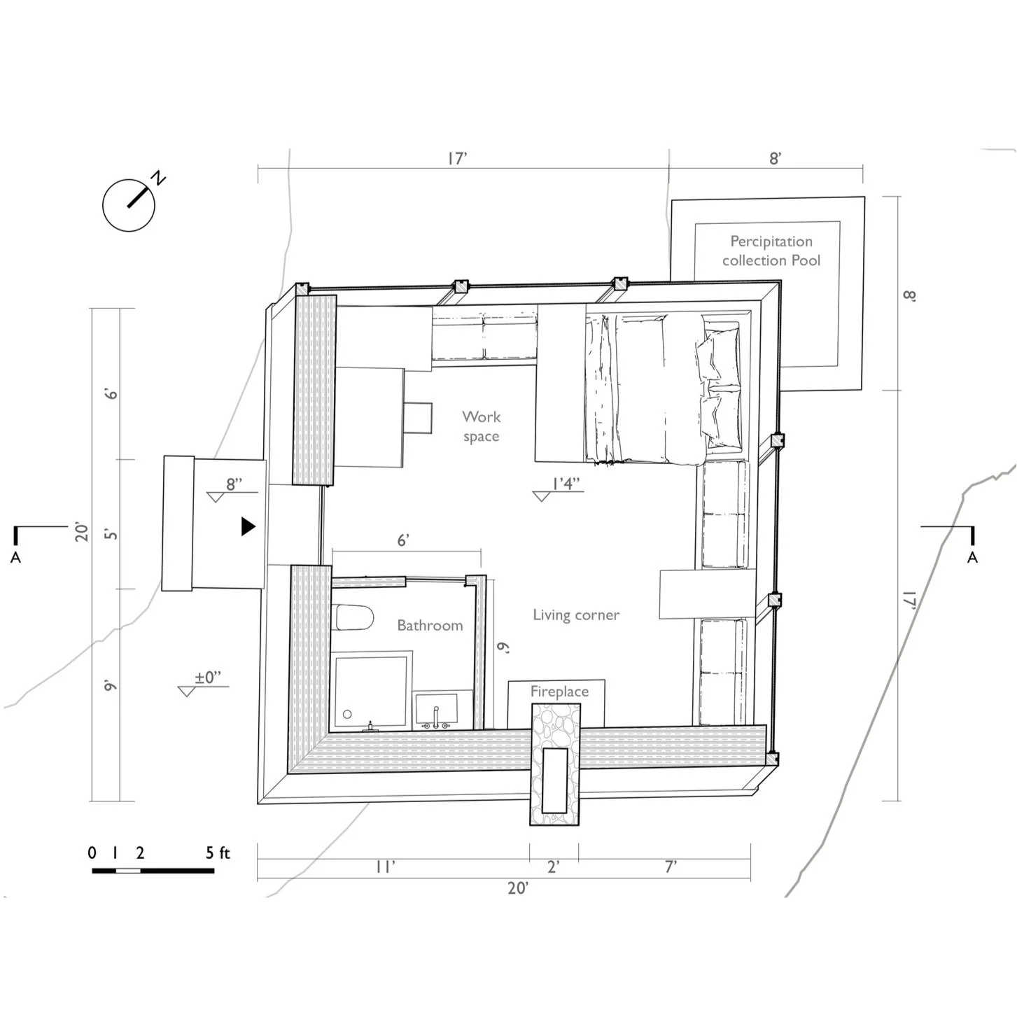
Desert shelter at Taliesin West
Desert Shelter design follows Wright’s organic architecture design concept.
Architecture Design Project
Site: Taliesin West, Arizona, US
Scale: 457 sft
Desert Shelter design follows Wright’s organic architecture design concept.
Architecture Design Project
Site: Taliesin West, Arizona, US
Scale: 457 sft